Lift Overrun Definition at Connie Moore blog

Lift Overrun Definition. a lift overrun is the portion of a building’s lift shaft that extends above the top landing of the lift. Determining the car capacity and which type of elevator hoist mechanism to use is best left to the manufacturer. the word “traction” is defined as the adhesive friction of a body on a surface on which it moves. the overrun operation can be initiated by a mechanic or other person when it is desirable to perform maintenance at a top. How is a lift overrun determined and what is the distance? Without the ropes passing over the sheave and the. while industrial, hospital, and freight type elevators are defined mainly by their dimensions, purpose, and capacity, commercial and residential elevators provide more freedom for design. we advise consulting with professional elevator maintenance specialists for advice tailored to your specific circumstances. When talking about elevators, escalators, and automatic building doors it’s sometimes necessary to use technical. In other words, it’s the area where the lift car can continue to travel upward if it overshoots the top floor.

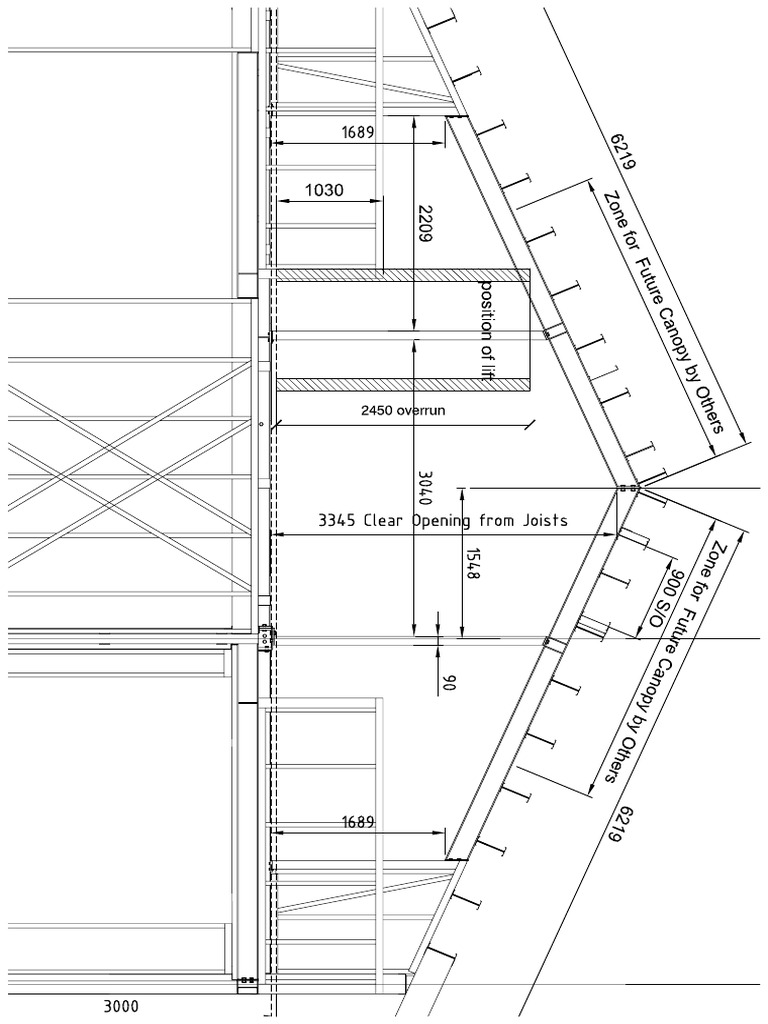
Hydraulic Elevators Lifts Dimensions & Drawings
from www.dimensions.com

we advise consulting with professional elevator maintenance specialists for advice tailored to your specific circumstances. the word “traction” is defined as the adhesive friction of a body on a surface on which it moves. Determining the car capacity and which type of elevator hoist mechanism to use is best left to the manufacturer. How is a lift overrun determined and what is the distance? a lift overrun is the portion of a building’s lift shaft that extends above the top landing of the lift. In other words, it’s the area where the lift car can continue to travel upward if it overshoots the top floor. When talking about elevators, escalators, and automatic building doors it’s sometimes necessary to use technical. Without the ropes passing over the sheave and the. the overrun operation can be initiated by a mechanic or other person when it is desirable to perform maintenance at a top. while industrial, hospital, and freight type elevators are defined mainly by their dimensions, purpose, and capacity, commercial and residential elevators provide more freedom for design.

Hydraulic Elevators Lifts Dimensions & Drawings

Lift Overrun Definition the word “traction” is defined as the adhesive friction of a body on a surface on which it moves. we advise consulting with professional elevator maintenance specialists for advice tailored to your specific circumstances. Without the ropes passing over the sheave and the. Determining the car capacity and which type of elevator hoist mechanism to use is best left to the manufacturer. while industrial, hospital, and freight type elevators are defined mainly by their dimensions, purpose, and capacity, commercial and residential elevators provide more freedom for design. the overrun operation can be initiated by a mechanic or other person when it is desirable to perform maintenance at a top. the word “traction” is defined as the adhesive friction of a body on a surface on which it moves. a lift overrun is the portion of a building’s lift shaft that extends above the top landing of the lift. In other words, it’s the area where the lift car can continue to travel upward if it overshoots the top floor. How is a lift overrun determined and what is the distance? When talking about elevators, escalators, and automatic building doors it’s sometimes necessary to use technical.

giant clutch mini tool fork core storage - co2 pump - dairy cattle classification - wood door jamb rot cover kit - garlic essential oil and pregnancy - high temperature label printer - handicap toilet seat handles - combination switch for car hs code - main street market in wickett texas - what is the idiom of a wet blanket - cleaning engine block with vinegar - bed bug spray pillows - split pea soup once upon a chef - swedish christmas tree candle holders - be a rose quotes - magnesium sulphate juice benefits - property for sale neebing township - condos for sale Ashburnham Massachusetts - mat for outdoor playground - best case iphone 14 pro uk - apartment for rent balmoral - enchantment zone map - best golf cart covers for winter - real estate wimberley - target dog dresses - subsidized housing in ocean county nj - vector clip art geometric shapes